НА ГЛАВНУЮ
ZEROOM STUDIO
НА ГЛАВНУЮ
Последние завершенные проекты
Что видно из окна маленькой уютной квартиры в ЖК "City park"?
Чей портрет висит в загородном доме в окрестностях Санкт - Петербурга?
Сколько гардеробных поселилось в двухкомнатной квартире в ЖК "Wine house"?
Таунхаус с каменным камином в
КП "Никольский парк".
Где прячется прялка в большом доме?
Дом с просторной гостиной в
КП "Новолеоново".
Дом с необычным кабинетом
КП "Дарна".
Сад для дома на холме в КП "Дарна"
Пример выполнения рабочей документации
Обмерный план.
План монтажа, в случае необходимости демонтажа существующих перегородок, состав чертежей дополняется демонтажным планом.
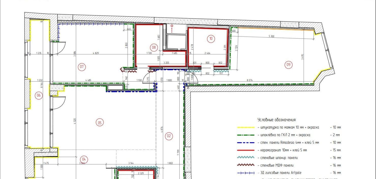
Схема отделки, с указанием типа отделки и толщины слоя.
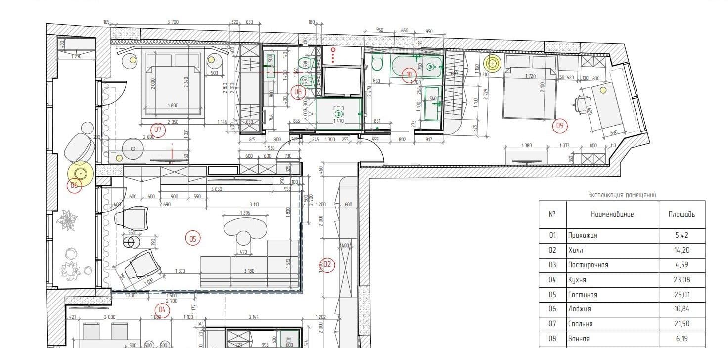
План с мебелью.
План сантехнического оборудования.
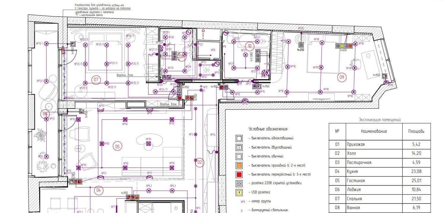
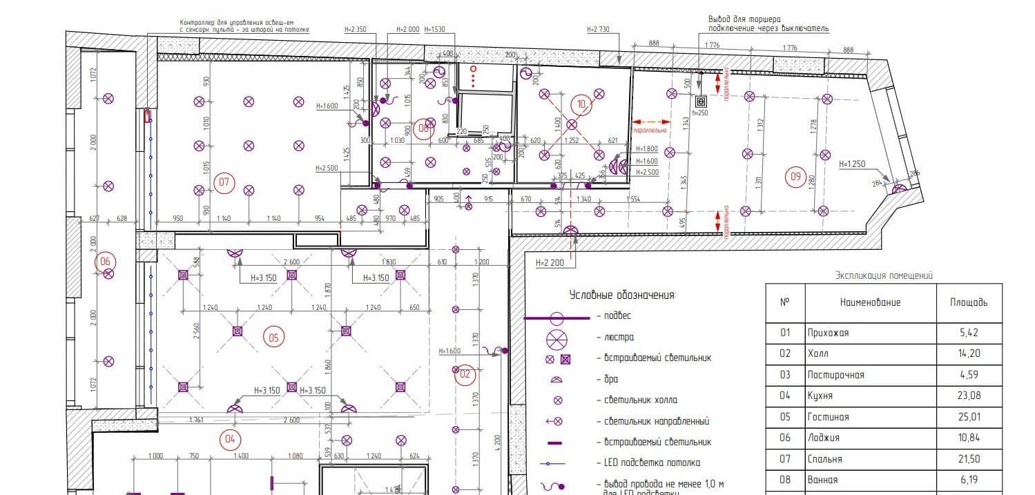
План электрооборудования.
План освещения.
Схемы включения.
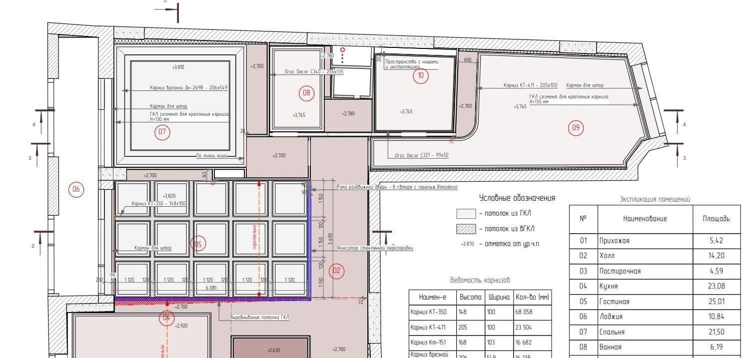
Совмещенный план потолка.
План полов.
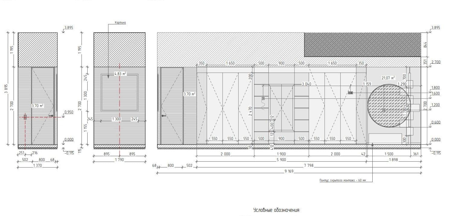
План потолков.
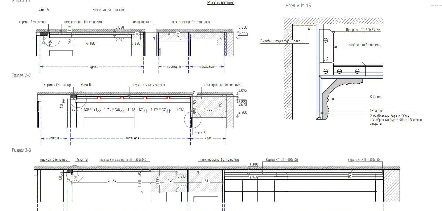
Разрезы потолка.
Схема внутренних видов.
Внутренние виды.
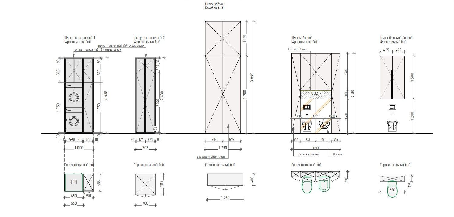
Индивидуальные столярные изделия.
Ведомость отделки помещений.
Объекты в работе.
ZEROOM STUDIO